Proyectos / Villa El Estanque 2da Etapa – Peñalolén
Proyecto Villa El Estanque 2da Etapa – PEÑALOLÉN
Año: 2017
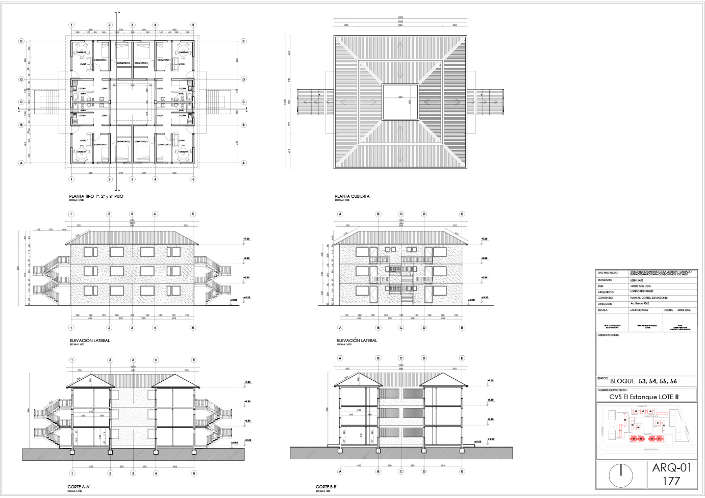
La Copropiedades se ubica en un sector de viviendas sociales en Santiago, delimitada por las calles Diecinueve, Grecia, Veinticuatro y Jacaranda. El conjunto habitacional, construido en 1979, está compuesto por cuatro bloques de tres niveles, con un total de 560 m² construidos. Cada bloque cuenta con 12 departamentos de aproximadamente 47 m², que incluyen living-comedor, dos dormitorios, un baño, logia y cocina. La edificación es de albañilería confinada, con techumbre de zinc y escaleras exteriores de acero.
El proyecto contempla la intervención de toda la copropiedad para mejorar tanto la habitabilidad como los sistemas de agua y alcantarillado, los cuales presentan daños por el desgaste del tiempo y mala instalación, ocasionando filtraciones, eflorescencias y problemas de humedad.
Obras a realizar:
1. Renovación de redes de agua y alcantarillado: Reemplazo completo de las redes y artefactos sanitarios, incluyendo un nuevo shaft de descarga.
2. Cambio de puertas de acceso:Sustitución de puertas con numeración actualizada para mejorar la seguridad y estética del conjunto.
3. Reposición de cerámicos en zonas húmedas: Renovación de revestimientos en paredes y pisos debido a las obras de alcantarillado.





